loader

Our Services

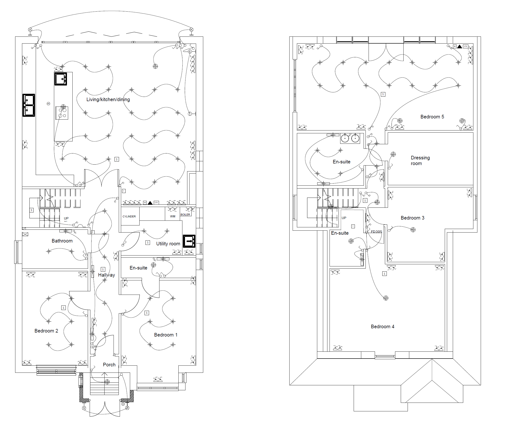
Building Regulations Drawings and Building Control Applications
Building Regulations Drawings and Building Control Applications

We provide comprehensive Building Regulations drawings and Building Control application services for all types of projects, from residential extensions and loft conversions to complex new builds and commercial developments.

Architectural and Interior Design
Architectural and Interior Design

We provide all architectural services including site survey and architectural drawings, all planning applications (new build, extensions, conversions, use class, shopfront and advertisement consent, listed building consents, green belts etc.)

Planning Appeals
Planning Appeals

Planing appeals including house holder applications , full planing applications , lawful development certificate, prior approval, Removal/variation of conditions, discharge of conditions, use class applications.

Customer comments

Blog